Электрика в каркасном доме
Тел: + 7 911 924 03 25

Электрика в гофре.

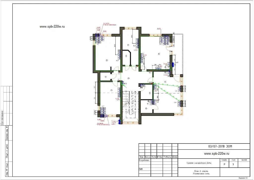
В проекте для разводки электрики в жилом доме 194 м2 предусмотрено 186 электрических точек.

Согласно разработанного проекта в доме запланировано:

- 868 метров погонных прокладки электрического кабеля сеченим 3х1.5 для освещения и 3х2.5 для розеточной части (соответственно пластиковая гофра 20 мм диаметром);

- электрический шкаф (на 32 модуля) для 19 электро автоматов на 16А и 10А (19 шт), автоматы УЗО, дифференциальные автоматы (10 шт), общее количество 29 штук;

Общее количество электрического оборудования и материалов (к-во электро-приемников, установленная мощность, общая мощность кВт, коэффициенты, активная мощность, реактивная мощность, расчетный ток, длина линии, наименование и к-во автоматов, к-во и марка электрического кабеля ВВГнг(А)-LS), Вы можете посмотреть в таблице расчета электрических нагрузок.

Чертежи (проект) прокладки электрических проводов для освещения и розеток, схема электрических автоматов.

проект разводки электрики для дома 194 м2 проект разводки электрики для дома 194 м2 проект разводки электрики для дома 194 м2 проект разводки электрики для дома 194 м2 проект разводки электрики для дома 194 м2 проект разводки электрики для дома 194 м2 проект разводки электрики для дома 194 м2 проект разводки электрики для дома 194 м2


Примеры выполненных электромонтажных работ с ценами по прокладке электрики в загородных домах, нашей фирмой.

электрика в частном доме 200 метров
Разводка электрики в доме из газо силикатных блоков 220 м. кв. подробнее
электрика под ключ в доме 200 метров
Разводка электрики в доме из газобетона 200 м. кв. подробнее
электрика под ключ в каркасном доме 190 метров
Разводка электрики под ключ в каркасном доме 190 м. кв. подробнее
электрика под ключ в кирпичном доме 200 метров
Монтаж электрики под ключ в кирпичном доме 200 м. кв. подробнее

Наши цены на электромонтажные работы в каркасных домах с прокладкой электрических проводов и с установкой электрических приборов:

- цена за точку 300 рублей или 400 руб/м.кв. площади загородного с открытой прокладкой проводов в гофре с наружной установкой розеток и выключателей;

- цена за точку 400 рублей или 600 руб/м.кв. площади дома с прокладкой электрического кабеля в пластиковых кабель каналах с установкой наружных розеток и выключателей;

- цена за точку 500 рублей или 800 руб/м.кв. площади коттеджа с прокладкой витого электрического провода (ретро проводка), с установкой ретро розеток и выключателей.

Что входит в стоимость электро «точки»? Электромонтажные работы из которой складывается "цена за точку" состоит:

монтаж розетки (одинарная, двойная или секция из 3-8 розеток) с подводкой электро проводов - точка;

монтаж выключателя (одинарный, двойной или тройной) с подводкой электро проводов - точка;

монтаж светильника (люстры, бра) с 1 и более лампочками с подводкой электрических проводов - точка;

монтаж распределительной коробки с распайкой проводов и с подводкой электрического провода - точка.

* Стоимость за м.кв. или за точку указана только за электромонтажные работы при объеме работ от 50 000 до 100 000 рублей. При выполнении электромонтажных работ на сумму 100 000 - 150 000 рублей скидка от 15%, на сумму 150 000 - 200 000 рублей скидка от 25%.


Наши цены на разводку электрики в загородных домах скрытым способом или в гофре:

Стоимость электромонтажных работ за м. кв. площади загородного дома.

Площадь, кв.м.

до 150

151-200

201-300

301-500

свыше 500

Цена, руб.

700 руб/кв.м.

650 руб/кв.м.

600 руб/кв.м.

550 руб/кв.м.

500 руб/кв.м.

Стоимость указана только за монтажные работы, без стоимости материала.

Электрику в гофре делаем в деревянных из бревна или бруса, в каркасных, из газобетона, в кирпичных домах по потолку, в полу, в стенах или в перегородках скрытым способом под ключ.

Скидка на монтаж электрики в гофре.

При монтаже электрики на сумму от 100 000 руб., сделаем скидку 25%.

заказать смету
Сервис обратного звонка RedConnect