Электрика проектирование и монтаж
Тел: + 7 911 924 03 25

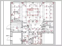
Схема электропроводки.

Проект монтажа электрики и дизайн проект с расположением мебели, сделан для балкона квартиры в доме новостройке.

Чертежи размещения розеток и осветительных приборов на балконе (лоджии) квартиры.

схемы разводки электрики для балкона квартиры схемы разводки электрики для балкона квартиры схемы разводки электрики для балкона квартиры схемы разводки электрики для балкона квартиры

Примеры проектов для разводки электрики для различных помещений и строений (частный дом, дача, коттедж, офис, квартира, ванная комната, магазин, гостиница и т. д.).

Квартира 90 м. кв.
проект электрики для квартиры 90 м. кв.

3-х комнатная квартира
схема электро автоматов
чертежи разводки освещения
чертежи разводки розеток
нормативные документы
смотреть проект

   
Квартира 100 м. кв.
проект электрики для квартиры 100 м2

3-х комнатная квартира
схема электро автоматов
чертежи разводки освещения
чертежи разводки розеток
развертка стен по высоте
смотреть проект

   
Квартира 105 м. кв.
электрика в квартире 105 м. к.в

3-х комнатная квартира
номативные документы
чертежи разводки освещения
чертежи разводки розеток
расчеты нагрузок на провода
смотреть проект

   
Квартира 110 м. кв.
чертежи монтажа электрики в квартире 110 м2

3-х комнатная квартира
разводка освещения
разводка выключателей
разводка розеток
электрические точки
смотреть проект

   
Квартира 112 м. кв.
схема электрики для квартиры 112 м2

4-х комнатная квартира
схема разводки освещения
цены на электромонтажные
схема разводки розеток
количество электро точек
смотреть проект

   
Квартира 120 м. кв.
проект электрики для квартиры 120 м. к.в

3-х комнатная квартира
нормативные документы
схема разводки освещения
схема разводки розеток
спецификация оборудования
смотреть проект

   
Квартира 122 м. кв.
схема электрики для квартиры 122 м2

3-х комнатная квартира
схема разводки освещения
цены на монтаж электрики
схема разводки розеток
дизайн интерьеров квартиры
смотреть проект

   
Дом 90 м. кв.
проект электрики в каркасном доме 115 м. кв.

Дом из пенобетона
схема установки ТВ розеток
чертежи разводки освещения 1 и 2 эт.
чертежи разводки розеток 1 и 2 эт.
схема установки розеток на кухне
смотреть проект

   
Дом 100 м. кв.
проект электрики для дома 100 м. кв.

Дом из пеноблоков
чертежи фасада дома
чертежи разводки освещения 1 и 2 эт.
чертежи разводки розеток 1 и 2 эт.
поэтажные планы помещений
смотреть проект

   
Дом 110 м. кв.
проект электрики для дома 110 м. кв.

Дом из газобетона
фото фасада загородного дома
схема разводки освещения 1 и 2 эт.
схема разводки розеток 1 и 2 эт.
поэтажные планы комнат дома
смотреть проект

   
Дом 112 м. кв.
проект электрики для дома 100 м. кв.

Дом из клееного бруса
визуализация интерьеров
чертежи разводки освещения 1 и 2 эт.
чертежи разводки розеток 1 и 2 эт.
нормативные требования
смотреть проект

   
Дом 400 м. кв.
проект электрики для загородного дома 400 метров

Загородный дом в 3 этажа
технические условия
чертежи разводки освещения
чертежи разводки розеток
принципиальная однолинейная схема
смотреть проект


Заказать монтаж электрики в квартире, Вы можете прислав нам почту заявку economstroi@mail.ru.

Скидка на монтаж электрики в квартире или загородном доме.

При монтаже электрики в зависимости от объема, Мы существенно сделаем Вам скидку.

заказать расчет
Сервис обратного звонка RedConnect