Электрика проектирование и монтаж
Тел: + 7 911 924 03 25

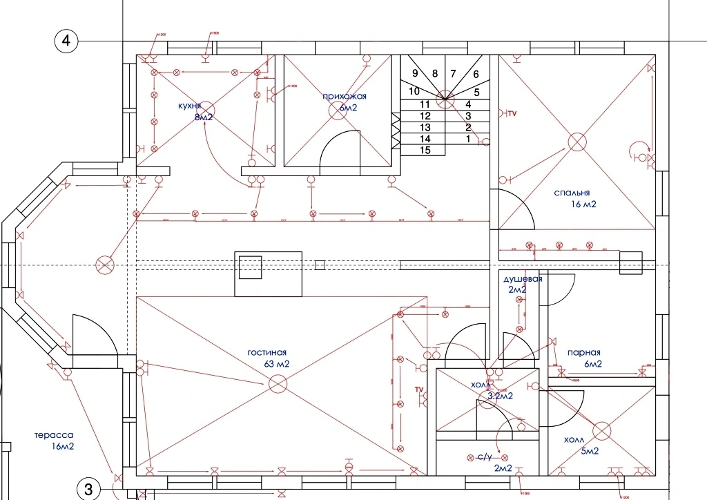
Разводка электрики в доме из газобетона под ключ.

Согласно разработанного проекта в частном доме требуется проложить 1 280 м.пог. электро проводов разного сечения и установить 182 электро приборов.

Вы можете бесплатно скачать полный проект электромонтажных работ с расположением розеток и их количеством, дизайн интерьера гостиной, спальных и ванных комнат дома.

проект электрики и дизайн интерьеров дома 284 м2 проект электрики и дизайн интерьеров дома 284 м2 проект электрики и дизайн интерьеров дома 284 м2 проект электрики и дизайн интерьеров дома 284 м2 проект электрики и дизайн интерьеров дома 284 м2 проект электрики и дизайн интерьеров дома 284 м2 проект электрики и дизайн интерьеров дома 284 м2 проект электрики и дизайн интерьеров дома 284 м2

В проекте имеются все неоходимые расчеты для безопасной разводки электрики (дом построен из газобетона), с количеством электрических розеток, выключателей и осветительных приборов (люстр, бра, встроеннных и накладных светильников).


Фото наших работ по электромонтажным работам и цены в загородных домах и коттеджах.

монтаж электрики в доме 90 метров
Монтаж электрики в доме из газобетона площадью 90 м. кв. подробнее
монтаж электрики в доме 170 метров
Разводка электрики в загородном доме из пенобетона 170 м. кв. подробнее
электрика в частном доме 200 метров
Разводка электрики в доме из газо силикатных блоков 220 м. кв. подробнее
электрика под ключ в доме 200 метров
Разводка электрики в доме из газобетона 200 м. кв. подробнее

        

Смета и проект
бесплатно

        

Договор

        

Электрики
с дипломами

        

Монтаж под ключ

100% гарантия !


Наши цены на электромонтажные работы в частных домах с прокладкой электрических проводов и с установкой электрических приборов:

- цена за точку 300 рублей или 400 руб/м.кв. площади загородного с открытой прокладкой проводов в гофре с наружной установкой розеток и выключателей;

- цена за точку 400 рублей или 600 руб/м.кв. площади дома с прокладкой электрического кабеля в пластиковых кабель каналах с установкой наружных розеток и выключателей;

- цена за точку 500 рублей или 800 руб/м.кв. площади коттеджа с прокладкой витого электрического провода (ретро проводка), с установкой ретро розеток и выключателей.

Что входит в стоимость электро «точки»? Электромонтажные работы из которой складывается "цена за точку" состоит:

монтаж розетки (одинарная, двойная или секция из 3-8 розеток) с подводкой электро проводов - точка;

монтаж выключателя (одинарный, двойной или тройной) с подводкой электро проводов - точка;

монтаж светильника (люстры, бра) с 1 и более лампочками с подводкой электрических проводов - точка;

монтаж распределительной коробки с распайкой проводов и с подводкой электрического провода - точка.

* Стоимость за м.кв. или за точку указана только за электромонтажные работы при объеме работ от 50 000 до 100 000 рублей. При выполнении электромонтажных работ на сумму 100 000 - 150 000 рублей скидка от 15%, на сумму 150 000 - 200 000 рублей скидка от 25%.


Наши цены на полную разводку и подключение электрики в деревянных домах:

Каждая смета рассчитывается индивидуально и стоимость наших работ по разводке электрики в частных домах, так же зависит от сезонности и загруженности нашей фирмы.

Стоимость электромонтажных работ за м. кв. площади загородного дома.

Площадь, кв.м.

до 150

151-200

201-300

301-500

свыше 500

Цена, руб.

700 руб/кв.м.

650 руб/кв.м.

600 руб/кв.м.

550 руб/кв.м.

500 руб/кв.м.

Стоимость указана только за монтажные работы, без стоимости материала.

Электрику в частных дома при заказе под ключ на сумму от 150 000 рублей, сделаем со скидкой от 18%. Все материалы по ценам производителя с нашей оптовой скидкой, для Вас.


Скидка на монтаж электрики в квартире или загородном доме.

При монтаже электрики в зависимости от объема, Мы существенно сделаем Вам скидку.

заказать расчет
Сервис обратного звонка RedConnect