Электрика в загородном доме 400 м
Тел: + 7 911 924 03 25

Электрика в гостинице, проект разводки по точкам.

Для прокладки электрики и ее подключения к электро приборам (оборудованию) в здании из газобетона (2 этаж и 1 этаж гараж) предусмотрено 80 электрических точек.

В проекте содержатся чертежи, схемы, с техническим описанием параметров проведения электромонтажных работ для жилых строений (зданий). Проект содержит следующие нормативные документы и техническое описание.

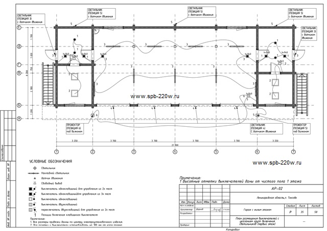
План размещения выключателей с указанием групп включения светильников (первый этаж).

План размещения выключателей с указанием групп включения светильников (второй этаж).

План размещения осветительных приборов с привязкой выпусков (второй этаж).

План размещения осветительных приборов с привязкой выпусков (второй этаж).

План размещения электроточек и выводов с мебелью (первый этаж).

План размещения электроточек и выводов с мебелью (второй этаж).

Монтажная схема размещения электроточек и выводов (первый этаж).

План размещения электроточек и выводов с мебелью (второй этаж).

Развертки помещений (Спальня персонала №1;Спальня персонала №2).

Развертки помещений (Сан Узел №1; Сан Узел №2).

Развертка помещения (Вахта).

проект разводки электрики в гостинице-гараж 400 м2 проект разводки электрики в гостинице-гараж 400 м2 проект разводки электрики в гостинице-гараж 400 м2 проект разводки электрики в гостинице-гараж 400 м2 проект разводки электрики в гостинице-гараж 400 м2 проект разводки электрики в гостинице-гараж 400 м2 проект разводки электрики в гостинице-гараж 400 м2 проект разводки электрики в гостинице-гараж 400 м2 проект разводки электрики в гостинице-гараж 400 м2 проект разводки электрики в гостинице-гараж 400 м2 проект разводки электрики в гостинице-гараж 400 м2 проект разводки электрики в гостинице-гараж 400 м2

Пример сметы на выполнение электромонтажных работ со стоимостью работ и материалов.

№ Наименование и техническая характеристика Единица изме-рения Коли-чество материал работа

1 Устройство заземления шт. 0 15000 0 10000 0
2 Устройство молниеотведения шт. 0 15000 0 20000 0
3 Щит пластиковый навесного исполнения в комплекте с Din-рейкой, шинами N, PE, IP54 шт. 1 1500 1500 5000 5000
4 Автоматический выключатель трёхполюсный шт. 1 800 800 250 250
5 Выключатель нагрузки трехполюсный шт. 1 450 450 250 250
6 Автоматический выключатель однополюсный шт. 10 300 3000 150 1500
7 Автоматический выключатель однополюсный шт. 4 250 1000 150 600
8 Дифференциальный автоматический выключатель двухполюсный шт. 1 1500 1500 250 250
9 Кабель 3х2.5 м. 300 50 15000 100 30000
10 Кабель 3х1.5 м. 200 35 7000 100 20000
11 Кабель 3х4 м. 20 100 2000 100 2000
12 Труба пластиковая гофррованная ПВХ м. 300 10 3000 50 15000
13 Коробка установочная шт. 58 40 2320 250 14500
14 Коробка распаечная IP44 шт. 35 60 2100 500 17500
15 Выключатель одноклавишный для скрытой установки, IP20 шт. 14 300 4200 300 4200
16 Выключатель двухклавишный для скрытой установки, IP20 шт. 0 350 0 300 0
17 Розетка штепсельная одноместная наружная, IP44 шт. 3 400 1200 400 1200
18 Розетка штепсельная одноместная для скрытой установки, IP20 шт. 40 300 12000 300 12000
19 Монтаж наружных светильников шт. 0 0 500 0
20 Монтаж светильников шт. 0 0 500 0
21 Устройство шроб кирпич+заделка м.п. 200 0 0 350 70000

ИТОГО: 57070 194250

ВСЕГО: 251320

Выполненные работы по прокладке и подключению электрики в загородных домах Ленинградской области, нашей фирмой.

электрика в частном доме 200 метров
Разводка электрики в доме из газо силикатных блоков 220 м. кв. подробнее
электрика под ключ в доме 200 метров
Разводка электрики в доме из газобетона 200 м. кв. подробнее
электрика под ключ в каркасном доме 190 метров
Разводка электрики под ключ в каркасном доме 190 м. кв. подробнее
электрика под ключ в кирпичном доме 200 метров
Монтаж электрики под ключ в кирпичном доме 200 м. кв. подробнее

Наши цены на электромонтажные работы в загородных домах (гостиницах, магазинах, офисах, квартирах, торговых центрах, гаржах, кафе, ресторанах) с прокладкой электрических проводов и с установкой электрических приборов:

- цена за точку 300 рублей или 400 руб/м.кв. площади загородного с открытой прокладкой проводов в гофре с наружной установкой розеток и выключателей;

- цена за точку 400 рублей или 600 руб/м.кв. площади дома с прокладкой электрического кабеля в пластиковых кабель каналах с установкой наружных розеток и выключателей;

- цена за точку 500 рублей или 800 руб/м.кв. площади коттеджа с прокладкой витого электрического провода (ретро проводка), с установкой ретро розеток и выключателей.

Что входит в стоимость электро «точки»? Электромонтажные работы из которой складывается "цена за точку" состоит:

монтаж розетки (одинарная, двойная или секция из 3-8 розеток) с подводкой электро проводов - точка;

монтаж выключателя (одинарный, двойной или тройной) с подводкой электро проводов - точка;

монтаж светильника (люстры, бра) с 1 и более лампочками с подводкой электрических проводов - точка;

монтаж распределительной коробки с распайкой проводов и с подводкой электрического провода - точка.

* Стоимость за м.кв. или за точку указана только за электромонтажные работы при объеме работ от 50 000 до 100 000 рублей. При выполнении электромонтажных работ на сумму 100 000 - 150 000 рублей скидка от 15%, на сумму 150 000 - 200 000 рублей скидка от 25%.


Наши цены на разводку и подключение электрики в загородных домах:

Каждая смета рассчитывается индивидуально и стоимость наших работ по разводке электрики в частных домах, так же зависит от сезонности и загруженности нашей фирмы.

Стоимость электромонтажных работ за м. кв. площади загородного дома.

Площадь, кв.м.

до 150

151-200

201-300

301-500

свыше 500

Цена, руб.

от 900 руб/кв.м.

от 850 руб/кв.м.

от 700 руб/кв.м.

от 650 руб/кв.м.

от 600 руб/кв.м.

Стоимость указана только за монтажные работы, без стоимости материала.

Проводим электромонтажные работы на коммерческих и частных объектах. Положительные отзывы. Работаем с 2006 года. По договору и строго по утвержденой смете. Скидки на материалы до 30%. Осмотр и смета бесплатно.

Скидка на монтаж электрики в квартире или загородном доме.

При монтаже электрики в зависимости от объема, Мы существенно сделаем Вам скидку.

заказать расчет
Сервис обратного звонка RedConnect