Электрика проектирование и монтаж
Тел: + 7 911 924 03 25

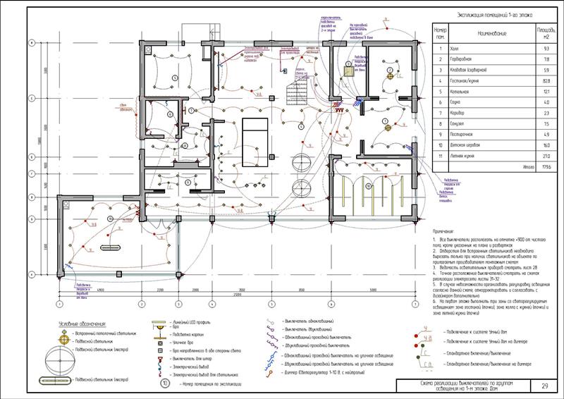
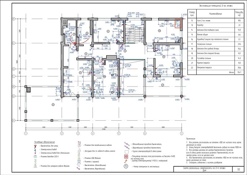
Проект разводки электрики для частного дома из газобетона.

Для прокладки электрики в загородном доме предусмотрено 88 электрических точек, это розетки, выключатели, светильники, распаечные коробки.

В проекте показаны схемы прокладки электрики в двухэтажном доме 340 м. кв. общей площади с расположением розеток и осветительных приборов (светильников и люстр) для 1 и 2 этажа дома. На схемах расположены линии прокладки электрического провода, планировка поэтажная, дизайн интерьеров с раскладкой по стенам разных помещений.

проект монтажа электрики для дома 340 м2 проект монтажа электрики для дома 340 м2 проект монтажа электрики для дома 340 м2 проект монтажа электрики для дома 340 м2 проект монтажа электрики для дома 340 м2 проект монтажа электрики для дома 340 м2 проект монтажа электрики для дома 340 м2 проект монтажа электрики для дома 340 м2 проект монтажа электрики для дома 340 м2 проект монтажа электрики для дома 340 м2 проект монтажа электрики для дома 340 м2 проект монтажа электрики для дома 340 м2
На странице сайта размещен типичный проект (часть проекта) разводки электрики, по которым мы делаем прокладку (разводку, подключение, монтаж) электрики в каркасных домах, в домах из пенобетона (газоблоков, газобетона), кирпича, в деревянных домах из бруса или бревна, из сип панелей.

Для такой схемы разводки электрических проводов мы отдельно рассчитываем нагрузки на провода и отдельно делаются расчеты по нагрузкам на электрическую сеть и подбираются электро автоматы с правильными техническими характеристиками (10, 16, 25 ампер).

смотреть фото  


Так же на сайте мы разместили несколько картинок с дизайном интерьеров дома (схемы растановки мебели, отделочные материалы, и т. д.). В дизайн проекте показаны виды как будет смотреться интерьер гостиной комнаты с разных ракурсов.

Мы работаем с любыми проектами по разводке электрики, как с просто с дизайн проектом интерьеров дома по которуму мы сами делаем проект монтажа электрики.

проект монтажа электрики для дома 340 м2 проект монтажа электрики для дома 340 м2 проект монтажа электрики для дома 340 м2 проект монтажа электрики для дома 340 м2 проект монтажа электрики для дома 340 м2 проект монтажа электрики для дома 340 м2 проект монтажа электрики для дома 340 м2 проект монтажа электрики для дома 340 м2 проект монтажа электрики для дома 340 м2 проект монтажа электрики для дома 340 м2 проект монтажа электрики для дома 340 м2 проект монтажа электрики для дома 340 м2

Наши цены на электромонтажные работы в частных домах с прокладкой электрических проводов и с установкой электрических приборов:

- цена за точку 300 рублей или 400 руб/м.кв. площади загородного с открытой прокладкой проводов в гофре с наружной установкой розеток и выключателей;

- цена за точку 400 рублей или 600 руб/м.кв. площади дома с прокладкой электрического кабеля в пластиковых кабель каналах с установкой наружных розеток и выключателей;

- цена за точку 500 рублей или 800 руб/м.кв. площади коттеджа с прокладкой витого электрического провода (ретро проводка), с установкой ретро розеток и выключателей.

Что входит в стоимость электро «точки»? Электромонтажные работы из которой складывается "цена за точку" состоит:

монтаж розетки (одинарная, двойная или секция из 3-8 розеток) с подводкой электро проводов - точка;

монтаж выключателя (одинарный, двойной или тройной) с подводкой электро проводов - точка;

монтаж светильника (люстры, бра) с 1 и более лампочками с подводкой электрических проводов - точка;

монтаж распределительной коробки с распайкой проводов и с подводкой электрического провода - точка.

* Стоимость за м.кв. или за точку указана только за электромонтажные работы при объеме работ от 50 000 до 100 000 рублей. При выполнении электромонтажных работ на сумму 100 000 - 150 000 рублей скидка от 15%, на сумму 150 000 - 200 000 рублей скидка от 25%.


Наша фирма предлагает услуги по комплексному монтажу электрики в коттеджах, домах, квартирах, офисных зданиях, магазинах, ресторанах и других помещениях города Санкт-Петербурга и Ленингралской области.

Стоимость разводки электрики для любого объекта зависит от площади помещений, количества точек электропотребления и состава подключаемого электрооборудования. Так же на стоимость монтажа электрики влияет и каким образом будет проведена проводка.

Скидка на монтаж электрики в квартире или загородном доме.

При монтаже электрики в зависимости от объема, Мы существенно сделаем Вам скидку.

заказать расчет