Электрика проектирование и монтаж
Тел: + 7 911 924 03 25

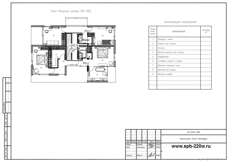
Проект монтажа электрики доме из пенобетона.

проект электрики для дома 170 м. кв. проект электрики для дома 170 м. кв. проект электрики для дома 170 м. кв. проект электрики для дома 170 м. кв. проект электрики для дома 170 м. кв. проект электрики для дома 170 м. кв. проект электрики для дома 170 м. кв. проект электрики для дома 170 м. кв. проект электрики для дома 170 м. кв. проект электрики для дома 170 м. кв. проект электрики для дома 170 м. кв. проект электрики для дома 170 м. кв. проект электрики для дома 170 м. кв. проект электрики для дома 170 м. кв. проект электрики для дома 170 м. кв. проект электрики для дома 170 м. кв. проект электрики для дома 170 м. кв. проект электрики для дома 170 м. кв. проект электрики для дома 170 м. кв. проект электрики для дома 170 м. кв. проект электрики для дома 170 м. кв. проект электрики для дома 170 м. кв. проект электрики для дома 170 м. кв. проект электрики для дома 170 м. кв. проект электрики для дома 170 м. кв. проект электрики для дома 170 м. кв.

Для полной разводки электрики в доме предусмотрено 60 электрических точек (22 электро розетки, 16 выключателей, 14 светильников, 4 распаечные коробки. Чертежи разводки (прокладки, электромонтаж) электропроводов, можете бесплатно скачать для обраца.

На картинках показаны схемы монтажа электрики в загородном доме 170 м. кв. общей площади построенного из пенобетона. Вы можете бесплатно скачать полный проект элетромонтажных работ с расположением розеток и осветительных приборов (светильников и люстр).

Так же на чертежах показаны маркировочные планы расположения розеток, выключателей, люстр, светильников, бра на 1 и 2 этажах загородного дома. В проекте имеется схема размещения точечных светильников на потолках первого и второго этажа дома.

По данному проекту нашей фирмой выполнены электромонтажные работы под ключ. Фото выполненных работ по монтажу электрики (установленные светильники, бра, розетки, люстры и выключатели) Вы сможете посмотреть на этой странице нашего сайта. Так же там Вы можете бесплатно скачать смету со стоимостью и объемами электромонтажных работ.


Наши цены на электромонтажные работы в частных домах с прокладкой электрических проводов и с установкой электрических приборов:

- цена за точку 300 рублей или 400 руб/м.кв. площади загородного с открытой прокладкой проводов в гофре с наружной установкой розеток и выключателей;

- цена за точку 400 рублей или 600 руб/м.кв. площади дома с прокладкой электрического кабеля в пластиковых кабель каналах с установкой наружных розеток и выключателей;

- цена за точку 500 рублей или 800 руб/м.кв. площади коттеджа с прокладкой витого электрического провода (ретро проводка), с установкой ретро розеток и выключателей.

Что входит в стоимость электро «точки»? Электромонтажные работы из которой складывается "цена за точку" состоит:

монтаж розетки (одинарная, двойная или секция из 3-8 розеток) с подводкой электро проводов - точка;

монтаж выключателя (одинарный, двойной или тройной) с подводкой электро проводов - точка;

монтаж светильника (люстры, бра) с 1 и более лампочками с подводкой электрических проводов - точка;

монтаж распределительной коробки с распайкой проводов и с подводкой электрического провода - точка.

* Стоимость за м.кв. или за точку указана только за электромонтажные работы при объеме работ от 50 000 до 100 000 рублей. При выполнении электромонтажных работ на сумму 100 000 - 150 000 рублей скидка от 15%, на сумму 150 000 - 200 000 рублей скидка от 25%.


Наши цены на полную разводку и подключение электрики в загородных домах и коттеджах (газо/пено бетон, кирпичный, каркасных, деревянный брус/бревно):

Каждая смета рассчитывается индивидуально и стоимость наших работ по разводке электрики в частных домах, так же зависит от сезонности и загруженности нашей фирмы.

Стоимость электромонтажных работ за м. кв. площади загородного дома.

Площадь, кв.м.

до 150

151-200

201-300

301-500

свыше 500

Цена, руб.

от 1 200 руб/кв.м.

от 1 050 руб/кв.м.

от 900 руб/кв.м.

от 750 руб/кв.м.

от 500 руб/кв.м.

Стоимость указана только за монтажные работы, без стоимости материала.

Низкие цены. Диагностика – 0 руб. Гарантия – 2 года. Чек и договор. Скидка - 20%. Оплата по факту. Мастера РФ с допусками и разрешениями.

Скидка на монтаж электрики в квартире или загородном доме.

При монтаже электрики в зависимости от объема, Мы существенно сделаем Вам скидку.

заказать расчет
Сервис обратного звонка RedConnect