Электрика проектирование и монтаж
Тел: + 7 911 924 03 25

Разводка электрики в 2 этажном доме из газобетонных блоков, планы электромонтажа и стоимость.

планы электрики в доме из газобетона планы электрики в доме из газобетона планы электрики в доме из газобетона планы электрики в доме из газобетона планы электрики в доме из газобетона планы электрики в доме из газобетона планы электрики в доме из газобетона планы электрики в доме из газобетона

ПРИМЕЧАНИЕ:

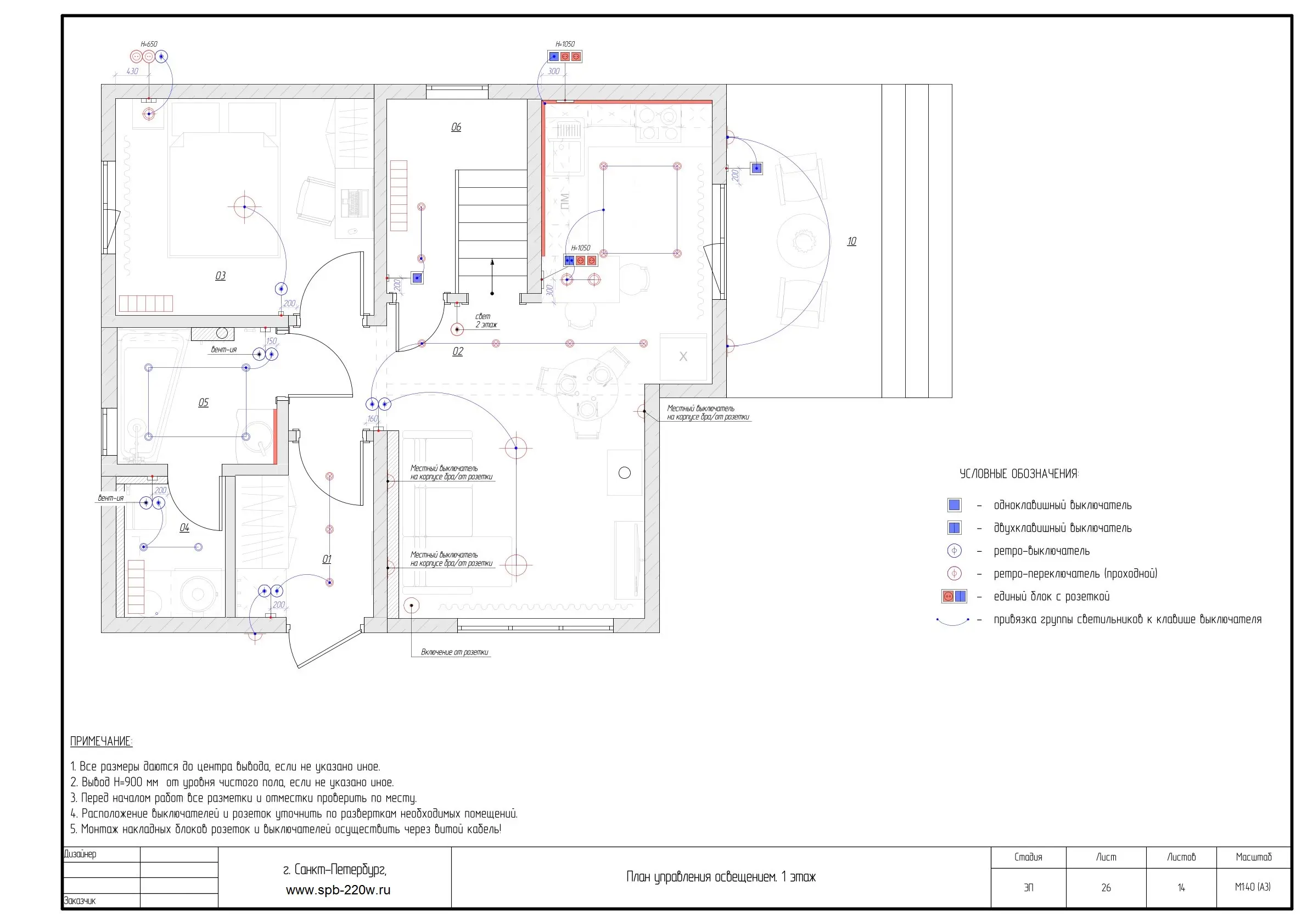
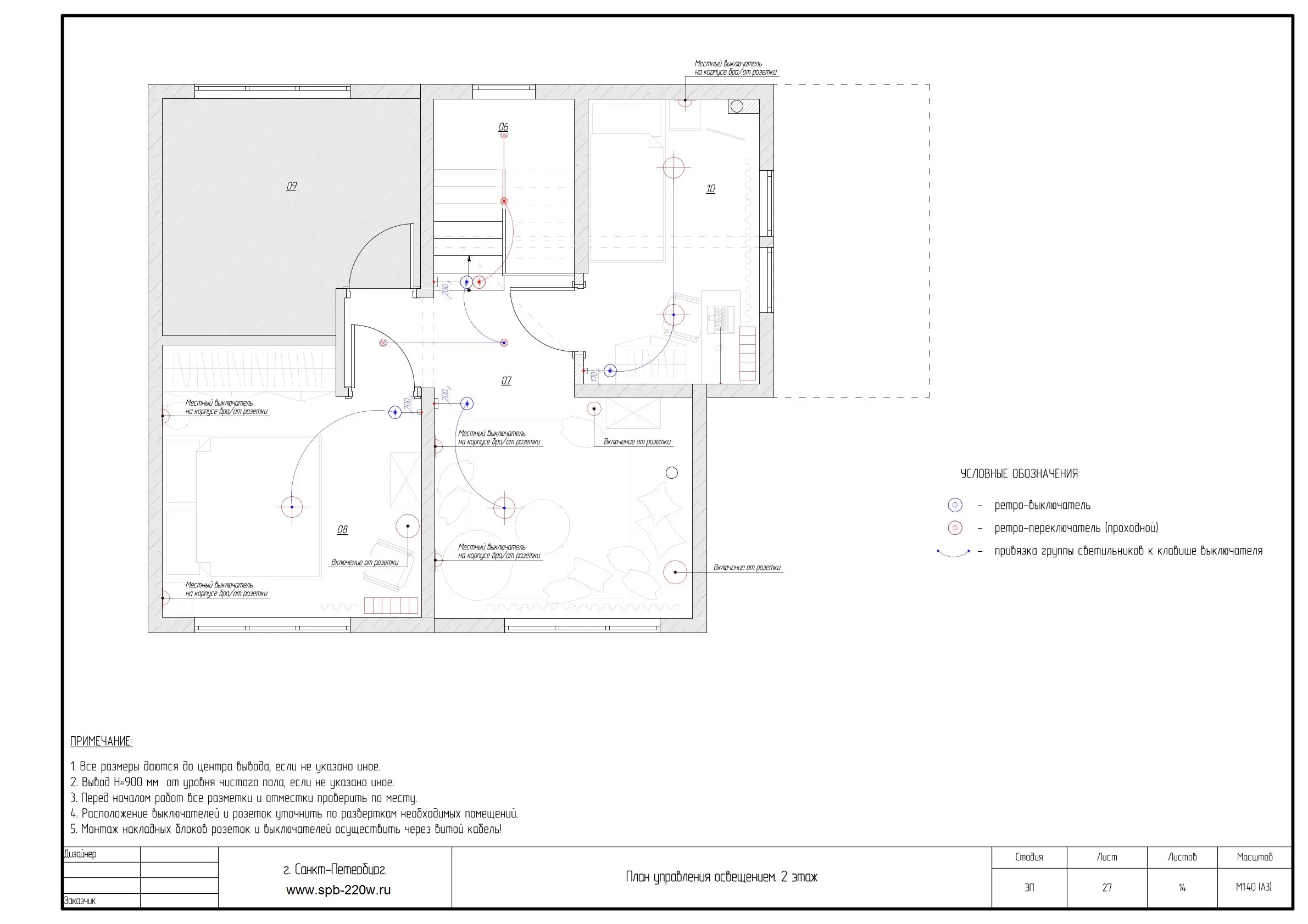
1. Мощность светильников в проекте не указана.

2. Перед началом работ все разметки и отместки проверить по месту.

3. Разметить места расположения потолочных светильников и согласовать с заказчиком.

4. Все выпуски электроосвещения согласовать по месту после возведения перегородок, предусмотреть запас провода 1 метр.

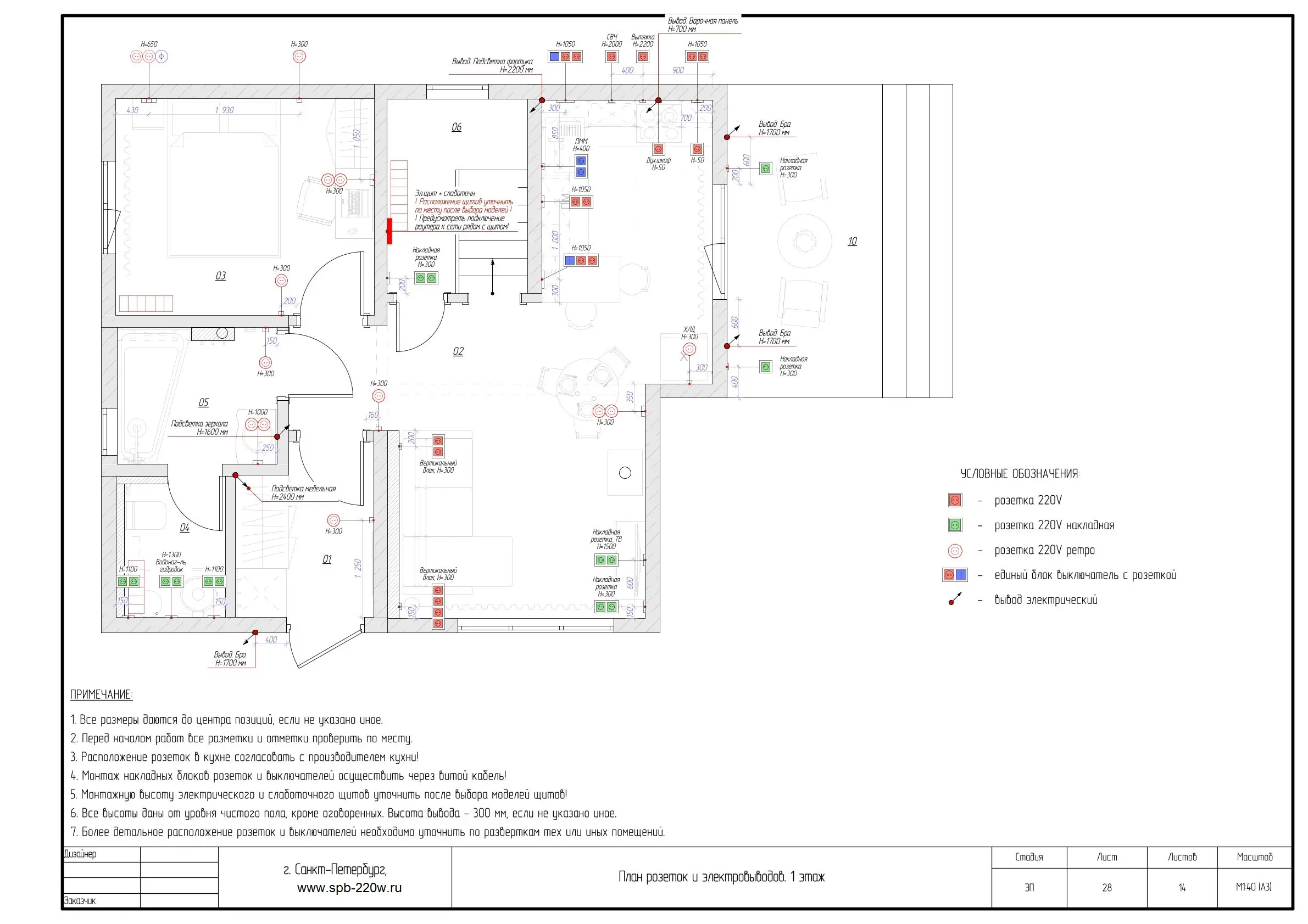
5. Все размеры даются до центра вывода, если не указано иное.

6. Вывод Н=900 мм от уровня чистого пола, если не указано иное.

7. Перед началом работ все разметки и отместки проверить по месту.

8. Расположение выключателей и розеток уточнить по разверткам необходимых помещений.

9. Все размеры даются до центра позиций, если не указано иное.

10. Расположение розеток в кухне согласовать с производителем кухни!

11. Монтаж накладных блоков розеток и выключателей осуществить через витой кабель!

12. Монтажную высоту электрического и слаботочного щитов уточнить после выбора моделей щитов!

13. Все высоты даны от уровня чистого пола, кроме оговоренных. Высота вывода - 300 мм, если не указано иное.

14. Монтаж накладных блоков розеток и выключателей осуществить через витой кабель!

15. Более детальное расположение розеток и выключателей необходимо уточнить по разверткам тех или иных помещений.

Электромонтаж любой сложности в С-Пб и Ленобласти. Вызвать мастера +7 (911) 924-03-25. Работаем с 2005 года. Профессионалы со стажем и допусками до 100 кВт.

Некоторые работы с фото (портфолио) электромонтажа и цены на разводку электрики нашей фирмой под ключ в Санкт-Петербурге и Ленинградской области, выполненные за 2023-2025 год.

монтаж электрики в доме из газобетона
Электромонтаж выполнен в доме из газобетона. Стоимость и фото. подробнее
электрика под ключ в доме из газобетона
Электрика под ключ в доме из газобетона. Сметная стоимость. подробнее
электрика в коттедже из газобетона
Разводка электрики в коттедже согласно проекта, стоимость. подробнее
монтаж электрики в доме из газобетона
Разводка электрики в доме из газобетона сделана черновая. подробнее
монтаж электрики в кабель каналах
Электрика в доме из бруса в кабель каналах сделана под ключ. подробнее
монтаж электрики в кабель каналах
Электрики в деревянном доме из бруса 90 м2 в кабель каналах. подробнее
монтаж электрики в квартире
Монтаж электрики в 3 комн. квартире 90 м2 в доме новостройке. подробнее
монтаж элеткрики под ключ в каркасном доме
Монтаж электрики в каркасном доме 120 м2 согласно проекта. подробнее
монтаж ретро проводки в доме из бревна
Монтаж ретро проводки в деревянном доме из бревна 280 м2. подробнее
монтаж ретро проводки в доме из бруса
Прокладка кабеля под старину в брусовом доме 120 м2. подробнее
электрика в доме из газобетона
Электромонтажные в доме из газобетонных блоков, цены и фото. подробнее
скрытая электрика в каркасном доме
Скрытая электрика в каркасном доме, стоимость и фото работ. подробнее

Наши цены (монтаж электропроводки в доме из газобетона/пенобетона) на полную разводку и подключение электрики в частных загородных домах и коттеджах на 2025/2025 год:

Стоимость электромонтажных работ за м. кв. площади частного дома из дерева.

Площадь, кв.м.

до 150

151-200

201-300

301-500

свыше 500

Цена, руб.

от 1 700 руб/кв.м.

от 1 550 руб/кв.м.

от 1 300 руб/кв.м.

от 1 000 руб/кв.м.

от 800 руб/кв.м.

Стоимость указана только за монтажные работы, без стоимости материала.

Скидка на монтаж электрики в загородном доме.

При монтаже электрики на сумму от 70 000 руб., Мы сделаем Вам скидку от 20%.

заказать
Сервис обратного звонка RedConnect