Электрика проектирование и монтаж
Тел: + 7 911 924 03 25

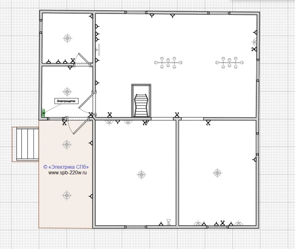
Схема разводки электрики в частном доме и стоимость за м2.

схема прокладки электрики в доме 240 м2 схема прокладки электрики в доме 240 м2 схема прокладки электрики в доме 240 м2 схема прокладки электрики в доме 240 м2

Схема прокладки электрики в доме 240 м2. Вы можете бесплатно скачать проект для примера. В данном заказе электро проводка проводится скрытая (штробление стен и перегородок, потолки натяжные).

Дом двухэтажный построен из газобетонных блоков, в нем 9 помещений (спальные комнаты, кухня, ванные 2 шт, гардеробная, коридор, холл, открытая терраса, гостиная и два санузла).

Так как потолок в дальнейшем будет натяжной, то элктропроводка для освещения проводится в пластиковой гофре на клипсах под потолком. В наружных и внутренних стенах электрические провода прокладываются в штробы.

Пол в доме будет с бетонной стяжкой (8-10 см толщиной с трубами отопления), и соответственно провода к розеткам проводятся по полу (в пластиковой гофре уличной/влагостойкой).

Розетки и выключатели в доме будут внутренние, на схемах указано их расположение. В случае неоходимости переноса выключателя в другое место, мы обычно устанавливаем радио выключатели.

Фото выполненных работ по разводке электрики в доме из газобетона » » » примерной площади и планировки, Вы можете посмотреть фото и стоимость электромонтажных работ по смете.


Фото электромонтажных работ в частных домах (каркасные, из газо/пено бетона, кирпичные, деревянные брус/бревно/лафет, монолитный бетон, СиП панели дачный, щитовые садовые), выполненные нами в Ленинградской области и в Санкт-Петербурге.
электромонтаж в деревянном доме из бруса
Электромонтаж в доме из бруса 150 м2, фото и стоимость по смете. подробнее
электрика в кабель каналах
Разводка электрики с кабель каналами в ванной комнате 8 м2. подробнее
ретро проводка в доме из бруса
Дом из бруса 120 м. кв. электрика с ретро проводкой, фото. подробнее
монтаж электрики в доме 280 м. кв. из пенобетона
Монтаж электрики под ключ в доме из пенобетона 280 м2, стоимость. подробнее
разводка электрики в каркасном доме 150 метров
Монтаж электрики в каркасном доме площадью 150 м. кв. подробнее
электрика под ключ в каркасном доме 190 метров
Разводка электрики под ключ в каркасном доме 190 м. кв. подробнее
монтаж электрики в каркасной бане
Разводка и подключение электрики в каркасной бане 16 м.кв. подробнее
разводка электрики в каркасном доме
Разводка и подключение электрики в каркасном доме 120 м. кв. подробнее
электрика в коттедже из газобетона
Разводка электрики в коттедже согласно проекта, стоимость. подробнее
электрика в доме из газобетона
Электромонтажные в доме из газобетонных блоков, цены и фото. подробнее
скрытая электрика в каркасном доме
Скрытая электрика в каркасном доме, стоимость и фото работ. подробнее
электрика с ретро проводкой
Электрика проведена с винтажными проводами, стоимость монтажа. подробнее

Наши цены на электромонтаж в загородных коттеджах с разводкой электро проводов и с установкой электрических приборов на 2025 год:

- цена за точку 700 рублей или от 800 руб. м2 площади загородного с открытой прокладкой проводов в гофре с наружной установкой розеток и выключателей;

- цена за точку 800 рублей или от 1000 руб. м2 площади дома с прокладкой электрического кабеля в пластиковых кабель каналах с установкой наружных розеток и выключателей;

- цена за точку 900 рублей или от 1 200 руб. м2 площади коттеджа с прокладкой витого электрического провода (ретро проводка), с установкой ретро розеток и выключателей.

Что входит в стоимость работ за «электроточку»? Электромонтажные работы из которой складывается "цена за точку электрическую" при монтаже элетричесого кабеля + розетки + выключатели электро + щиткок с электроавтоматами + люстры, бра, светильники:

монтаж розетки (одинарная, двойная или секция из 3-8 розеток) с подводкой электро проводов - точка;

монтаж выключателя (одинарный, двойной или тройной) с подводкой электро проводов - точка;

монтаж светильника (люстры, бра) с 1 и более лампочками с подводкой электрических проводов - точка;

монтаж распределительной коробки с распайкой проводов и с подводкой электрического провода - точка.

* Стоимость за м.кв. или за точку указана только за электромонтажные работы при объеме работ от 50 000 до 100 000 рублей. При выполнении электромонтажных работ на сумму 100 000 - 150 000 рублей скидка от 15%, на сумму 150 000 - 200 000 рублей скидка от 25%.


Наши цены на полную разводку и подключение электрики в деревянных домах из клееного или профилированного бруса, оцилиндрованного или рубленого (тесаного, окоренного) бревна, лафета:

Каждая смета рассчитывается индивидуально и стоимость наших работ по разводке электрики в частных домах, так же зависит от сезонности и загруженности нашей фирмы.

Стоимость электромонтажных работ за м. кв. площади загородного дома.

Площадь, кв.м.

до 150

151-200

201-300

301-500

свыше 500

Цена, руб.

от 900 руб/кв.м.

от 850 руб/кв.м.

от 800 руб/кв.м.

от 600 руб/кв.м.

от 500 руб/кв.м.

Стоимость указана только за монтажные работы, без стоимости материала.

Сделаем монтаж электропроводки в вашем доме или квартире! Без предоплат за работы! Защита от ударов током. Распределение нагрузки.

Скидка на монтаж электрики в квартире или загородном доме.

При монтаже электрики в зависимости от объема, Мы существенно сделаем Вам скидку.

заказать расчет
Сервис обратного звонка RedConnect