Электрика проектирование и монтаж
Тел: + 7 911 924 03 25

Электропроводка в доме из газобетона с деревянными перекрытиями, проект со схемами.

электропроводка в доме из газобетона электропроводка в доме из газобетона проект монтажа электрики для дома 450 м2 проект монтажа электрики для дома 450 м2 проект монтажа электрики для дома 450 м2 проект монтажа электрики для дома 450 м2
Примечания:

1. Перед началом монтажа осветительных приборов изучить характеристику выбранного прибора.
2. Во влажных помещениях использовать влагозащитные светильники (IP40 и выше), светодиодные ленты устанавливать в водонепроницаемый профиль.
3. На электровыводах оставлять запас кабеля не менее 15 см для удобного монтажа электроприборов.
4. Ко всем трансформаторам для светодиодного освещения предусмотреть доступ (скрытый монтаж, лючок, крышка).
5. Все привязки даны от стен с предполагаемой отделкой и с учетом толщины штукатурки по маякам 10-20 мм.
6. Перед началом работ все разметки проверить на месте и согласовать с заказчиком и дизайнером (архитектором).

Вы можете бесплатно скачать полный проект элетромонтажных работ с расположением розеток и количеством осветительных приборов (светильников и люстр) для 1 и 2 этажа загородного дома, общей площадью 450 м2.

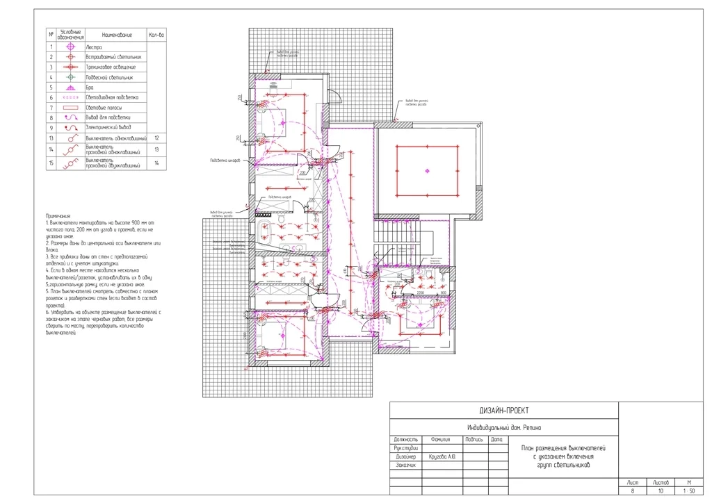
Примечания:

1. Выключатели монтировать на высоте 900 мм от чистого пола, 200 мм от углов и проемов, если не указано иное.
2. Размеры даны до центральной оси выключателя или блока.
3. Все привязки даны от стен с предполагаемой отделкой и с учетом штукатурки.
4. Если в одном месте находится несколько выключателей/розеток, устанавливать их в одну 5;горизонтальную рамку, если не указано иное.
5. План выключателей смотреть совместно с планом розеток и развертками стен (если входят в состав проекта).
6. Утвердить на объекте размещение выключателей с заказчиком на этапе черновых работ, все размеры сверить по месту, перепроверить количество выключателей.

На странице размещен типовой проект разводки электрики. Проводка для освещения пролкладывается по потолку в гофре, для розеток в гофре в бетонной стяжке пола, к розеткам и выключателям по стенам и перегородкам со штроблением. По такому типовому проекту электромонтажных работ нашей фирмой выполнены электромонтажные работы под ключ.

Фото выполненных работ по разводке электрики в двухэтажном доме из газобетонных блоков Вы можете посмотреть на этой странице нашего сайта. Так же там Вы можете бесплатно скачать смету со стоимостью и объемами разводки электрики.

Примечание:

1. Розетки монтировать на высоте 300 мм от чистого пола, 200 мм от углов и проемов, если не указано иное.
2. Размеры даны до центральной оси розетки или блока.
3. Все привязки даны от стен с предполагаемой отделкой с учетом штукатурки.
4. Если в одном месте находится несколько выключателей/розеток, устанавливать их в одну горизонтальную рамку, если не указано иное.
5. План розеток смотреть совместно с планом выключателей.
6. Утвердить на объекте размещение розеток с заказчиком на этапе черновых работ, все размеры сверить по месту, перепроверить количество розеток.
7. Высота расположения розеток за ТВ панелями может меняться, уточнить ее после выбора модели ТВ.
8. Расположение электровыводов уточнить по техническим картам поставщика оборудования. 9. На электровыводах оставлять запас кабеля не менее 1 м.
10. Размещение розеток и выводов подсветки мебели и фартука уточняется по техническому паспорту кухни от производителей.
11. Высоту выводов под светодиодную ленту определить по месту и согласовать с производителем мебели.
12. Размещение выводов под кондиционеры согласовать со специалистом по монтажу кондиционеров.
13. Высоту размещение розеток под полотенцесушитель утвердить по месту согласно спецификации прибора.
14. Вывод под варочную панель и розетку для духового шкафа развести на разные автоматы.

Некоторые работы с фото (портфолио) электромонтажа и цены на разводку электрики нашей фирмой под ключ в Санкт-Петербурге и Ленинградской области, выполненные за 2023-2024 год.

монтаж электрики в доме из газобетона
Электромонтаж выполнен в доме из газобетона. Стоимость и фото. подробнее
электрика под ключ в доме из газобетона
Электрика под ключ в доме из газобетона. Сметная стоимость. подробнее
электрика в коттедже из газобетона
Разводка электрики в коттедже согласно проекта, стоимость. подробнее
монтаж электрики в доме из газобетона
Разводка электрики в доме из газобетона сделана черновая. подробнее
монтаж электрики в кабель каналах
Электрика в доме из бруса в кабель каналах сделана под ключ. подробнее
монтаж электрики в кабель каналах
Электрики в деревянном доме из бруса 90 м2 в кабель каналах. подробнее
монтаж электрики в квартире
Монтаж электрики в 3 комн. квартире 90 м2 в доме новостройке. подробнее
монтаж элеткрики под ключ в каркасном доме
Монтаж электрики в каркасном доме 120 м2 согласно проекта. подробнее
монтаж ретро проводки в доме из бревна
Монтаж ретро проводки в деревянном доме из бревна 280 м2. подробнее
монтаж ретро проводки в доме из бруса
Прокладка кабеля под старину в брусовом доме 120 м2. подробнее
электрика в доме из газобетона
Электромонтажные в доме из газобетонных блоков, цены и фото. подробнее
скрытая электрика в каркасном доме
Скрытая электрика в каркасном доме, стоимость и фото работ. подробнее

Наши цены (монтаж электропроводки в доме из газобетона/пенобетона) на полную разводку и подключение электрики в частных загородных домах и коттеджах на 2024/2025 год:

Каждая смета рассчитывается индивидуально и стоимость наших работ по разводке электрики в частных домах, так же зависит от сезонности и загруженности нашей фирмы.

Стоимость электромонтажных работ за м. кв. площади частного дома из дерева.

Площадь, кв.м.

до 150

151-200

201-300

301-500

свыше 500

Цена, руб.

от 1 400 руб/кв.м.

от 1 250 руб/кв.м.

от 1 100 руб/кв.м.

от 900 руб/кв.м.

от 800 руб/кв.м.

Стоимость указана только за монтажные работы, без стоимости материала.
Наша фирма выполняет монтаж электрики в коттеджах, в домах, в квартирах, в офисных зданиях, в магазинах, в ресторанах и в других помещениях и строениях в строгом соответствии с пожеланиями заказчика.

Стоимость разводки электрики любого объекта зависит от площади помещения, количества точек электропотребления и состава подключаемого электрооборудования. Так же на стоимость монтажа электрики влияет и каким образом будет проведена проводка.

Например в кирпичном или в доме из пенобетона, методом штробления или открытым способом. В деревянном доме (в каркасном, в доме из бруса, в доме из бревна) в кабель каналах нужно развести проводку или сделать внутреннюю.

Например скрытую проводку делаем в домах (прокладываем электрические провода в гофре под полом или потолком, в перегородках или в стенах каркасного дома и т. д.), скрытую проводку делаем в металлической гофре или в пластиковой гофре, это тоже влияет на стоимость.

Быстро и недорого без потери качества, проложим/разведем/подлключим/смонтируем электропроводку в доме из газобетона под ключ!

Смонтируем по гостам и снипам в загородном доме, на даче, в коттедже или в квартире всю электрику (электропроводку, розетки, выключатели, люстры, электрические автоматы, бра, светильники и т. д.).

Онлайн смета за пару часов. Закажите разводку электрики со скидкой 20% в режиме онлайн.


Скидка на монтаж электрики в загородном доме.

При монтаже электрики на сумму от 70 000 руб., Мы сделаем Вам скидку от 20%.

заказать
Сервис обратного звонка RedConnect