Электрика весь комплекс работ
Тел: + 7 911 924 03 25

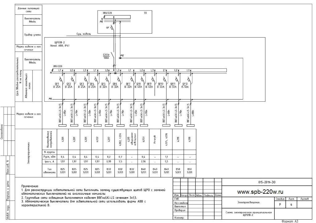
Проект монтажа электроснабжения двухэтажного коттеджа.

Проект монтажа электроснабжения двухэтажного коттеджа Проект монтажа электроснабжения двухэтажного коттеджа Проект монтажа электроснабжения двухэтажного коттеджа Проект монтажа электроснабжения двухэтажного коттеджа Проект монтажа электроснабжения двухэтажного коттеджа Проект монтажа электроснабжения двухэтажного коттеджа Проект монтажа электроснабжения двухэтажного коттеджа Проект монтажа электроснабжения двухэтажного коттеджа Проект монтажа электроснабжения двухэтажного коттеджа Проект монтажа электроснабжения двухэтажного коттеджа Проект монтажа электроснабжения двухэтажного коттеджа Проект монтажа электроснабжения двухэтажного коттеджа

Общая площадь 204,04 м2: кухня - гостинная, две ванных комнаты, гардероб, кладовая, три спальных комнаты, техническая комната, коридор, тамбур.

Требования к применяемым материалам и электрическому оборудованию:

Все используемые материалы и оборудование должны иметь соответствующие сертификаты, технические паспорта и другие документы, подтверждающие их технические характеристики. По окончании работ копии сертификатов, технических паспортов и иных документов должны быть предоставлены Заказчику. Подрядчик несет ответственность за соответствие применяемых материалов и оборудования государственным стандартам, техническим условиям и требованиям безопасности.

Применяемые электро приборы, возможна замена на аналоги с согласования Заказчика:

Трековый светильник CelingTreckF; Светодиодная лента Ultima A; Встраиваемый светильник Вouble Light; Люстра Maytoni Chain (80 см); Подвес Scandinavia (Тип B, черный+темное стекло); Люстра Brilliancy (чёрная, прозрачная); Люстра SPYGLASS (6 плафонов); Выключатель 1 и 2 клавишные Schneider Electric Atlas; Электрическая розетка Schneider Electric Atlas Design BD-1247692; Рамка Schneider Electric Atlas Design на 1 пост, BD-1247713.

Требования по объёму и сроку гарантий качества работ (услуг):

Подрядчик обязан обеспечить своевременное устранение замечаний Заказчика во время выполнения работ и в течение всего периода гарантии.
В случае обнаружения дефектов после приёмки работ, исправление дефектов осуществляется за счёт Подрядчика.
Гарантия качества выполняемых работ, в том числе на используемые в работе материалы, предоставляется в полном объёме на возможный обоснованный срок, с соблюдением технологии производства, действующих норм и правил в течение срока действия договора. Неудовлетворительное качество при выполнении работ является основанием для прекращения действия договора.

Выполняемые электромонтажные работы (услуги), основной перечень:

Монтаж выключателей одноклавишных неутопленного типа при открытой проводке. Монтаж выключателей двуклавишных неутопленного типа при открытой проводке. Монтаж щитков осветительных устанавливаемых в нише распорными дюбелями.
Сборка и разборка строительных лесов внутри помещений на высоту до 5м. Монтаж рукавов металлических наружный диаметр до 48 мм. Устройство штроб в кирпичных стенах глубиной до 20мм.
Заделка штроб полимерцементным составами с подготовкой к окрашиванию. Улучшенное окрашивание поверхностей стен колерованной краской производства Тиккурила.
Сверление отверстий в кирпичных стенах до 100 мм диаметром 25мм. Монтаж электромонтажных трубок из негорючего ПВХ диаметром 25мм. Монтаж проводки кабелем ВВГнг 3х1,5 мм2 и 3х2,5 мм2 в гофрорукаве.
Проверка наличия цепи между заземлителями и заземлёнными элементами. Замер полного сопротивления цепи «фаза-нуль». Снятие характеристик для определения напряжения прикосновения. Измерение сопротивления изоляции мегаомметром кабельных линий.

/b>Электромонтажные работы выполнить с учётом требований и нормативов:

- ПУЭ седьмое издание «Правила устройства электроустановок»;
- ПТЭЭП «Правила технической эксплуатации электроустановок потребителей»;
- «Правилами по охране труда при эксплуатации электроустановок».
- ФЗ от 30.12.2009 № 384-ФЗ «Технический регламент о безопасности зданий и сооружений»;
- СНиП Р 3.05.06-85 «Электротехнические устройства»;
- Постановление Правительства Российской Федерации от 25.04.2012 г. № 390 «Правил противопожарного режима в Российской Федерации».
- Освещенность на полу должна составлять не менее 400 лм по центру помещения и 350 лм по периметру помещения.


Прайс на разводку и подключение электрических приборов (оборудования) для разных строений и частных домов (коттеджей) с ценами на сезон 2024 год, при заказе электромонтажных работ на общую сумму от 180 000 рублей.

Стоимость электромонтажных работ за м2 площади загородного дома (коттеджа, дачи, бани), квартиры, офиса, производственного здания, коммерческого помещения.

Площадь, кв.м.

до 150

151-200

201-300

301-500

свыше 500

Цена, руб.

от 1 350 руб/кв.м.

от 1 250 руб/кв.м.

от 1 150 руб/кв.м.

от 950 руб/кв.м.

от 850 руб/кв.м.

Стоимость указана только на электромонтажные работы, без стоимости материала.


Наши некоторые работы по монтажу электрики в загородных домах (газобетон, кирпичный, брус, бревно, каркасный, щитовой), на даче, в квартирах и офисах сделанные нашей фирмой в С-Пб и ЛО.
электрика под ключ в каркасном доме 190 метров
Разводка электрики под ключ в каркасном доме 190 м. кв. подробнее
электрика под ключ в кирпичном доме 200 метров
Монтаж электрики под ключ в кирпичном доме 200 м. кв. подробнее
разводка электрики в доме из кирпича
Черновая разводка электрики в кирпичном доме в гофре и штробах подробнее
разводка электрики в доме из бруса
Разводка электрики в деревянном доме из профилированного бруса подробнее
монтаж электрики в доме из газобетона
Электромонтаж выполнен в доме из газобетона. Стоимость и фото. подробнее
электрика под ключ в доме из газобетона
Электрика под ключ в доме из газобетона. Сметная стоимость. подробнее
электрика в коттедже из газобетона
Разводка электрики в коттедже согласно проекта, стоимость. подробнее
электрика в доме из газобетона
Электромонтажные в доме из газобетонных блоков, цены и фото. подробнее
электромонтаж в газобетонном доме
Электромонтаж в газобетонном доме сделан под ключ подробнее
электромонтажные работы в доме из газобетона
Электромонтажные работы сделаны в доме из газобетона под ключ подробнее
электрика под ключ в загородном доме
Монтаж электрики под ключ в загородном доме 130 м. кв. подробнее
электрика под ключ в таунхаусе
Монтаж электрики под ключ в таунхаусе 240 м. кв. подробнее

Разводку и подключение электрики сделаем под ключ! +7 (812) 924-03-25. Работаем с 2008 года. Профессионалы со стажем от 15 лет. Оплата по факту по утвержденным ценам, сроки, гарантии.

Скидка на монтаж электрики в квартире.

При монтаже электрики от суммы в 80 000 рублей, Мы сделаем Вам скидку 18%.

заказать расчет