Электрика проектирование и монтаж
Тел: + 7 911 924 03 25

Установка электрики в доме.

Проект электрики в кирпичном доме 280 м2 предусматривает 180 электро точек (розетки, выключатели, светильники), распаечные коробки, автоматы).

Стоимость монтажа и подключения электрики в этом доме (согласно проекта и тех. задания) 750 рубль за метр кв. площади по полу 2 этажей кирпичного дома. Сроки прокладки в доме составят 20 - 25 рабочих дней, это черновая разводка провода, монтаж электро шкафа с электроавтоматами. Монтаж розеток, выключателей, светильников и люстр сделаем дней за 15 - 16 после чистовой отделки дома внутри.

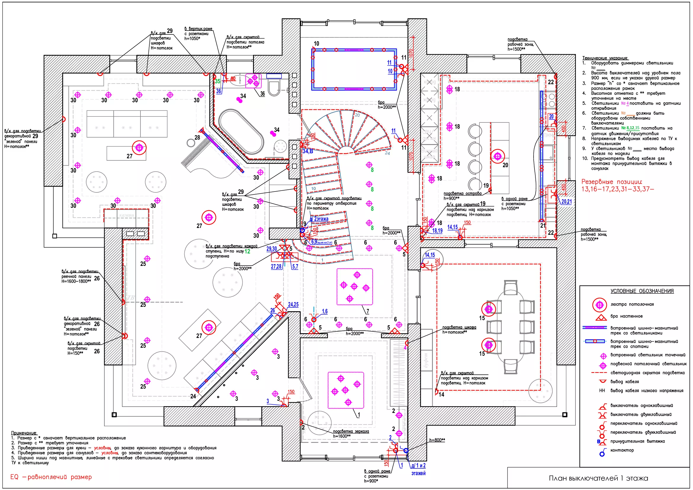
проект электрики для загородного дома из кирпича проект электрики для загородного дома из кирпича проект электрики для загородного дома из кирпича проект электрики для загородного дома из кирпича проект электрики для загородного дома из кирпича проект электрики для загородного дома из кирпича проект электрики для загородного дома из кирпича проект электрики для загородного дома из кирпича

Объемы необходимые для монтаж электрики в частном доме по видам работ и их количеству согласно разработанного проекта и технического задания заказчика (по дизайн проекту):

ЭТАП 1 Черновые работы ЭТАЖ 1:

1 Штроба в кирпиче м.п. 300

2 Проходные отверстия 300x110x200 шт. 3

3 Проходные отверстия 110x110x200 шт. 1

4 Проходные отверстия 300x110x400 шт. 4

5 Установка гильз для проходных отверстий шт. 8

6 Сверление подразетника в кирпиче шт. 72

7 Установка подразетника шт. 72

ЭТАП 2 Черновые работы ЭТАЖ 2:

1 Штроба в кирпиче м.п. 340.

2 Бурение перекрытия на 2 этаж шт 7.

Проходные отверстия 400x110x200 шт. 3.

3 Проходные отверстия 110x110x200 шт. 4.

4 Проходные отверстия 300x110x400 шт. 2.

5 Проходные отверстия 400x110x400 шт. 2.

6 Установка гильз для проходных отверстий шт 11.

7 Закладнйй лоток на 2 этаж шт 1.

8 Производство негорючего основания для прокладки кабеля м.п. 60.

Сверление подразетника в кирпиче шт 89.

Установка подразетника шт 89.

ЭТАП 3 Черновые работы ЭТАЖ 1:

1 Прокладка кабеля ППГнг-(А)-HF 5x4 в гофре плита м.п. 35.

2 Кабель ППГнг (А)- HF 4x1,5 на датчики движения м.п. 50.

3 Прокладка кабеля ШВВП 2x0,5 в гофре пермычки на светодиодную ленту м.п. 150.

4 Прокладка кабеля ППГнг-(А)-HF 3x1,5 в гофре на освещение м.п. 800.

5 Прокладка кабеля ППГнг-(А)-HF 3x2,5 в гофре на розетки м.п. 800.

6 Заделывание штробы м.п. 300.

7 Протяжка кабеля в гофру м.п. 1685.

8 Монтаж и расключение распределительной коробки шт 106.

9 Маркировка жил проводов и кабелей шт 60.

10 Монтаж лотка в котельной, в том числе ниша между щитами м.п. 6.

ЭТАП 4 Черновые работы ЭТАЖ 2:

1 Кабель ППГнг (А)- HF 4x1,5 на датчики движения м.п. 60.

2 Прокладка кабеля ШВВП 2x0,5 в гофре пермычки на светодиодную ленту м.п. 150.

3 Прокладка кабеля ППГнг-(А)-HF 3x1,5 в гофре на освещение м.п. 1000.

4 Прокладка кабеля ППГнг-(А)-HF 3x2,5 в гофре на розетки м.п. 1000.

5 Заделывание штробы м.п. 340.

6 Протяжка кабеля в гофру м.п. 1810.

7 Монтаж и расключение распределительной коробки шт 102.

8 Маркировка жил проводов и кабелей шт 60.

9 Монтаж лотка в котельной, в том числе ниша между щитами м.п. 6.

ЭТАП 5 Черновые работы ЭТАЖ 3. Мансарда+ выводы кабеля на крышу:

Прокладка кабеля ШВВП 2x0,5 в гофре пермычки на светодиодную ленту м.п.

Прокладка кабеля ППГнг-(А)-HF 3x1,5 в гофре м.п. 60.

Прокладка кабеля ППГнг-(А)-HF 3x2,5 в гофре м.п. 50.

Протяжка кабеля в гофру м.п. 110.

Монтаж и расключение распределительной коробки шт 5.

Маркировка жил проводов и кабелей шт 8.

ЭТАП 6 Сборка щита электрического.

ЭТАП 7 Установка щитов 1.

ЭТАП 8 Расключение щитов 1.

ЭТАП 9 Чистовая навеска оборудования ЭТАЖ 1:

Сверление подразетника керамогранит 50.

Монтаж розетки шт 40.

Монтаж розетки с/у с з/к влагозащищенных шт 10.

Монтаж датчика присутствия, движения шт 5.

Монтаж розетки для электроплит 32А открытой установки шт 1.

Монтаж выключателей, переключателей (еще шторы) шт 30.

Светильники 1 этаж + лестница.

Монтаж бра шт 20.

Монтаж люстр шт. 9.

Монтаж светильника шт 43.

Монтаж подвесных светильников шт 9.

Монтаж трековых светильников м.п. 38.

Монтаж светодиодной ленты м.п. 180.

Монтаж профиля для светодиодной ленты м.п. 180.

Подключение трансформатора светодиодной ленты шт 35.

Вентиляторы 1 этажа:

Монтаж вентилятора шт 4.

Монтаж канального вентилятора д100 шт.

ЭТАП 10 Чистовая навеска оборудования ЭТАЖ 2:

Сверление подразетника керамогранит 50.

Ниша под розетку на 2 этаже шт 1.

Монтаж розетки шт 40.

Монтаж розетки с/у с з/к влагозащищенных шт 10.

Монтаж розеток в пол шт 4.

Монтаж датчика присутствия, движения шт 6.

Монтаж розетки для электроплит 32А открытой установки шт 1.

Монтаж выключателей, переключателей (еще шторы) шт 30.

Светильники 2 этаж:

Монтаж бра шт 13.

Монтаж люстр шт. 3.

Монтаж светильника шт 60.

Монтаж подвесных светильников шт 9.

Монтаж трековых светильников м.п. 9.

Монтаж светодиодной ленты м.п. 182.

Монтаж профиля для светодиодной ленты м.п. 182.

Подключение трансформатора светодиодной ленты шт 35.

Монтаж терморегуляторов теплого пола шт 12.

Монтаж и подключение датчика температуры в пол шт 11.

ОБОРУДОВАНИЕ И РАСХОДНЫЕ МАТЕРИАЛЫ:

ППГнг-(А)-HF 5x4 плита м.п. 35.

ППГнг (А)- HF 4x1,5 на датчики движения м.п. 110.

ШВВП 2x0,5пермычки на светодиодную ленту м.п. 300.

ППГнг-(А)-HF 3x1,5 на освещение м.п. 1800.

ППГнг-(А)-HF 3x2,5 на розетки м.п. 1800.

Гипсоволокнистый ист KNAUF для создания негорючего основания шт. 20.

Подразетники schnieder electric шт. 161.

Гофра 20 по 100 м компл. 21.

Гофра 16 по 100 м компл. 21.

Клипсы 20 шт. 6000.

Клипсы 16 шт. 6000.

Гвозди для пистолета (по 1000 шт в компл.) Компл. 20.

Газовый балончик для пистолета шт 22.

Газовый баллон для пайки 5.

Олово грамм 350.

Паяльный жир шт 8.

Распределительные коробки 207.

Металлический лоток 400x100x3000 по 6 м шт 3.

Металлический лоток 300x100x3000 м 5.

Металлический лоток 100x100x3000 м 1.

Крепеж для лотка комплект 1.

Наши цены на электромонтажные работы в загородных домах (в коттеджах, на даче, в таунхаусах и пентхаусах) с прокладкой электрических проводов и с установкой электрических приборов:

- цена за точку 600 рублей или 800 руб/м.кв. площади загородного с открытой прокладкой проводов в гофре с наружной установкой розеток и выключателей;

- цена за точку 700 рублей или 1 200 руб/м.кв. площади дома с прокладкой электрического кабеля в пластиковых кабель каналах с установкой наружных розеток и выключателей;

- цена за точку 800 рублей или 1 400 руб/м.кв. площади коттеджа с прокладкой витого электрического провода (ретро проводка), с установкой ретро розеток и выключателей.

Что входит в стоимость электро «точки»? Электромонтажные работы из которой складывается "цена за точку" состоит:

монтаж розетки (одинарная, двойная или секция из 4-9 розеток) с подводкой электро проводов - точка;

монтаж выключателя (одинарный, двойной или тройной) с подводкой электро проводов - точка;

монтаж светильника (люстры, бра) с 1 и более лампочками с подводкой электрических проводов - точка;

монтаж распределительной коробки с распайкой проводов и с подводкой электрического провода - точка.

* Стоимость за м.кв. или за точку указана только за электромонтажные работы при объеме работ от 90 000 рублей. При выполнении электромонтажных работ на сумму от 150 000 рублей скидка от 15%, на сумму от 300 000 рублей скидка от 25%.


Наши работы с ценами по прокладке электрики в загородных домах построенных из бруса, бревна, газобетона и пенобетона.

разводка электрики в доме из кирпича
Черновая разводка электрики в кирпичном доме в гофре и штробах подробнее
электромонтаж в газобетонном доме
Электромонтаж в газобетонном доме сделан под ключ подробнее
электромонтажные работы в доме из газобетона
Электромонтажные работы сделаны в доме из газобетона под ключ подробнее
монтаж электрики в каркасной бане
Разводка и подключение электрики в каркасной бане 16 м.кв. подробнее
разводка электрики в доме из кирпича
Прокладка электрики в доме 260 м. кв., построенный из кирпича подробнее
разводка электрики в доме из газобетона
Разводка электрики в доме 160 м. кв., построенный из газобетона подробнее
разводка электрики в доме из кирпича
Разводка электрики в загородном доме из кирпича 240 м. кв. подробнее
электрика под ключ в доме из газобетона 300 м
Электрика под ключ в загородном доме из газобетона 300 м. кв. подробнее

Наши цены на полную разводку и подключение электрики в деревянных домах:

Стоимость электромонтажных работ за м. кв. площади загородного дома.

Площадь, кв.м.

до 150

151-200

201-300

301-500

свыше 500

Цена, руб.

1 200 руб/кв.м.

1 050 руб/кв.м.

900 руб/кв.м.

750 руб/кв.м.

600 руб/кв.м.

Стоимость указана только за монтажные работы, без стоимости материала.

Цены на проектирование электрики для загородных домов и коттеджей.

Стоимость разработки проекта электрики для загородного дома.

Площадь, кв.м.

до 150

151-200

201-300

301-500

свыше 500

Цена, руб.

290 руб/кв.м.

280 руб/кв.м.

270 руб/кв.м.

260 руб/кв.м.

250 руб/кв.м.



Работаем в выходные и праздничные дни. Выезд специалиста по СПб – бесплатно. Гарантия на работы от 3 лет. Прокладка кабеля по ГОСтам и СНипам. Монтаж электрощита под ключ. Разводка электрики по низким ценам. Калькулятор электрики в реальном времени на сайте! Узнай стоимость работ по электрике!

Скидка на монтаж электрики в квартире или загородном доме.

При монтаже электрики в зависимости от объема, Мы существенно сделаем Вам скидку.

заказать расчет
Сервис обратного звонка RedConnect