Электрика весь комплекс работ
Тел: + 7 911 924 03 25

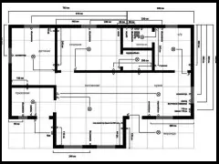
Схема разводки электрики в 3-х комнатной квартире.


план электрика в квартире план электрика в квартире план электрика в квартире план электрика в квартире

Чертежи прокладки электричесого провода и электрические точки (освещение и розетки) для квартиры в доме новостройке, площадью 68,2 м2.

Техническое задание при мотаже электрического оборудованя.

1. Все размеры даны в мм.

2. Все размеры уточнить по месту.

3. Несоответствие размеров и отметок согласовать с лицом, осуществляющим авторский надзор.

4. Размещение и габаритные размеры электрощитка (слаботочный щит) согласовать со специалистами.

4. Конфигурацию подсветки Внутри шкафов согласовать с производителем мебели после ее проекта.

5. Все выключатели располагаются на высоте h=900 мм от уровня чистового пола, за исключением отдельно указанных.

6. Все розетки располагаются на высоте h=300 мм от уровня чистового пола, за исключением отдельно указанных.

7. Привязки выключателей и розеток сверить с развертками! Все привязки по оси!

8. Расположение розеток в кухне согласовать с производителем кухни - !!!

9. Предусмотреть систему от протечки воды. Согласовать со специалистом!

10. Для всех электровыводов необходим запас провода 1500 мм.!

11. УЧП - уроВень чистого пола.

12. Количество контуров тёплого пола определяется ни основании инженерного проекта отопления!

13. Несоответствие размеров и отметок согласовать с лицом осуществляющим авторский надзор.

14. В местах крепления потолочных светильник и штанг предусмотреть закладные из фанеры.

15. Конфигурацию подсветки внутри шкафов согласовать с производителем мебели после ее проекта.

16. Технические характеристики светильников уточнить в инструкции от производителя.

17. Трансформаторы светодиодных лент разместить группами в легкодоступных местах.

18. Подсветка шкафов и зеркал планируется со своим собственным выключателем.

Экспликация помещений квартиры:

1. Спальня 19,9 м2.

2. Гостиная 12,9 м2.

3. Кабинет 12,4 м2.

4. Кухня 7,4 м2.

5. Прихожая 12,0 м2.

6. Ванная 2,6 м2.

7. Сан.узел 1,0 м2.

Иого общая площадь: 68,2 м2.


Электрику сделаем быстро, согласно проекта. Офис +7 (812) 924-03-25. Работаем с 2006 года. Профессионалы со стажем. Оплата по фиксированным ценам.


Стоимость работ по прокладке новой электрики в квартирах (в каждом помещении по 1 выкл. по 1 розетке, по 1 светильнику). Цены на 2019 год.

электрика в 1 комнатной квартире
1-комнатная квартира
от 58 000 руб.
смотреть цены  
электрика в 2 комнатной квартире
2-комнатная квартира
от 96 000 руб.
смотреть цены  
электрика в 3 комнатной квартире
3-комнатная квартира
от 142 000 руб.
смотреть цены  
электрика в 4 комнатной квартире
4-комнатная квартира
от 165 000 руб.
смотреть цены  


Примеры проектов (чертежи с размерами) для монтажа электрики в квартирах (панельные, кирпичные, сталинские дома и новостройки). Для примера можно схемы скачать для примера. По таким чертежам присланые заказчиками, мы делаем монтаж электрики.

Квартира 72 м. кв.
проект электрики для квартиры 72 м2

3-х комнатная квартира
дом новостройка
чертежи разводки освещения
чертежи разводки розеток
дизайн интерьеров
смотреть проект

   
Квартира 90 м. кв.
проект электрики для квартиры 90 м. кв.

3-х комнатная квартира
схема электро автоматов
чертежи разводки освещения
чертежи разводки розеток
нормативные документы
смотреть проект

   
Квартира 95 м. кв.
проект электрики для квартиры 95 м2

3-х комнатная в 2 этажа
схема электро автоматов
схема разводки освещения
схема разводки розеток
ссылочные документы
смотреть проект

   
Квартира 98 м. кв.
проект электрики для квартиры 98 м2

3-х комн. новостройка
схема электрики
планы теплого пола
схема растановка мебели
планы отделки потолков
смотреть проект

   
Квартира 100 м. кв.
проект электрики для квартиры 100 м2

3-х комнатная квартира
схема электро автоматов
чертежи разводки освещения
чертежи разводки розеток
развертка стен по высоте
смотреть проект

   
Квартира 105 м. кв.
электрика в квартире 105 м. к.в

3-х комнатная квартира
номативные документы
чертежи разводки освещения
чертежи разводки розеток
расчеты нагрузок на провода
смотреть проект

   
Квартира 110 м. кв.
чертежи монтажа электрики в квартире 110 м2

3-х комнатная квартира
разводка освещения
разводка выключателей
разводка розеток
электрические точки
смотреть проект

   
Квартира 112 м. кв.
схема электрики для квартиры 112 м2

4-х комнатная квартира
схема разводки освещения
цены на электромонтажные
схема разводки розеток
количество электро точек
смотреть проект

   
Квартира 120 м. кв.
проект электрики для квартиры 120 м. к.в

3-х комнатная квартира
нормативные документы
схема разводки освещения
схема разводки розеток
спецификация оборудования
смотреть проект

   
Квартира 122 м. кв.
схема электрики для квартиры 122 м2

3-х комнатная квартира
схема разводки освещения
цены на монтаж электрики
схема разводки розеток
дизайн интерьеров квартиры
смотреть проект

   
Квартира 140 м. кв.
проект электрики для квартиры 140 м. к.в

3-х комнатная квартира
схема электро автоматов
чертежи разводки освещения
чертежи разводки розеток
развертка стен по высоте
смотреть проект

   
Квартира 160 м. кв.
проект электрики для квартиры 160 м. к.в

3-х комнатная квартира
схема электро автоматов
чертежи разводки освещения
чертежи разводки розеток
ссылочные документы
смотреть проект


Скидка на монтаж электрики в квартире или загородном доме.

При монтаже электрики в зависимости от объема, Мы существенно сделаем Вам скидку.

Задать Вопрос
Сервис обратного звонка RedConnect