Электрика проектирование и монтаж
Тел: + 7 911 924 03 25

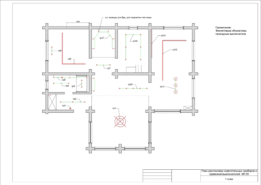
Проект разводки электрики в доме из газобетона.

Для полной разводки электрики в доме предусмотрено 54 электро точки (15 розеток, 14 выключателей, 16 светильников, 9 распаечные коробки, 680 м.пог. электрических проводов).

проект электрики для дома 220 м2 проект электрики для дома 220 м2 проект электрики для дома 220 м2 проект электрики для дома 220 м2 проект электрики для дома 220 м2 проект электрики для дома 220 м2 проект электрики для дома 220 м2 проект электрики для дома 220 м2

На странице нашего сайта размещен типичный проект прокладки электрики для загородного дома. По данному проекту нашей фирмой выполнены электромонтажные работы под ключ.

Фото выполненных работ по монтажу электрики, Вы сможете посмотреть на этой странице нашего сайта. Так же там Вы можете бесплатно скачать смету со стоимостью и объемами электромонтажных работ.


Наши цены на электромонтажные работы в частных домах с прокладкой электрических проводов и с установкой электрических приборов:

- цена за точку 400 рублей или 600 руб/м.кв. площади дачи с открытой прокладкой проводов в гофре с наружной установкой розеток и выключателей;

- цена за точку 500 рублей или 700 руб/м.кв. площади дома с прокладкой электрического кабеля в пластиковых кабель каналах с установкой наружных розеток и выключателей;

- цена за точку 600 рублей или 900 руб/м.кв. площади коттеджа с прокладкой витого электрического провода (ретро проводка), с установкой ретро розеток и выключателей.
Стоимость указана только за монтажные работы, без стоимости материала.

Низкие цены. Приедем за 30 минут. Диагностика – 0 рублей. Гарантия – 2 года. Чек и договор. Скидка - 20%. Оплата по факту. Срочный ремонт – 20 мин. Мастера РФ со стажем от 10 лет, с допусками и разрешениями до 100 кВт. Быстрый выезд. Убираем мусор за собой, работаем профессиональным инструментом. Опыт с 2006 года.

Скидка на монтаж электрики в квартире или загородном доме.

При монтаже электрики в зависимости от объема, Мы существенно сделаем Вам скидку.

заказать расчет
Сервис обратного звонка RedConnect